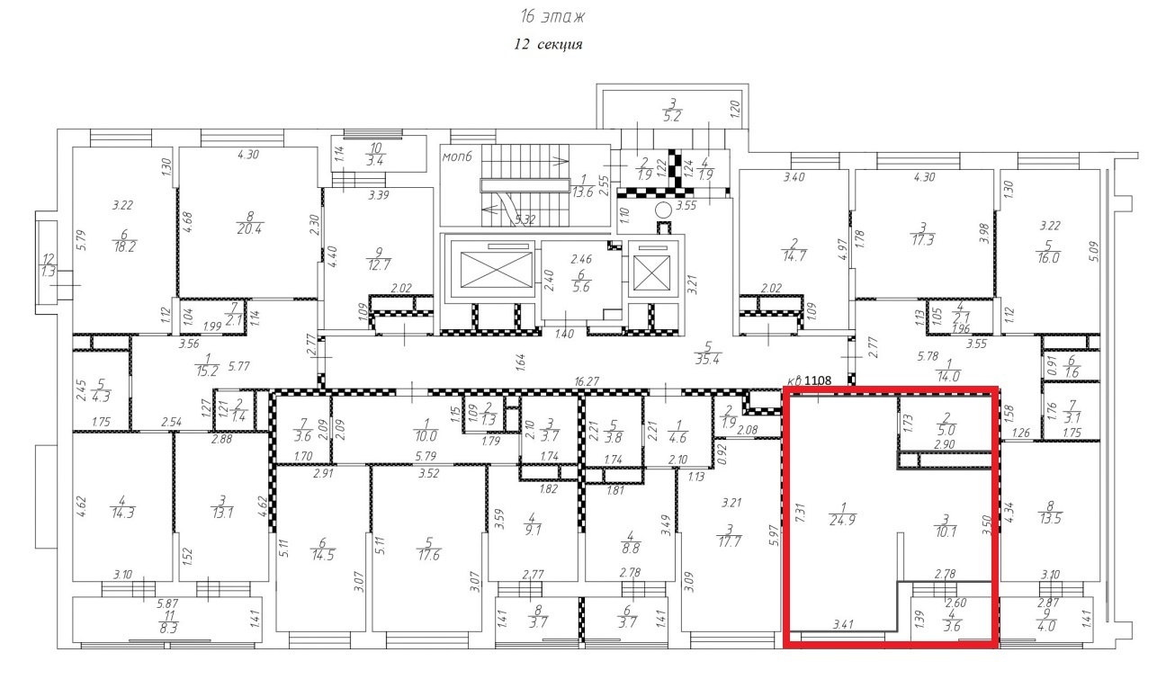
1-к. квартира, 40 м²
Продажа квартир на любой вкус и бюджет
Крупный жилой район эконом-класса из 16 высотных корпусов с собственной инфраструктурой, благоустроенной территорией с надземными и подземными паркингами.
Собственная инфраструктура:
школа №508;
колледж №36;
ГБПОУ Финансовый колледж №35;
детский спортивный центр;
детские сады «Умный заяц» и «Настроение»;
подстанция скорой помощи №29.
В шаговой доступности от дома расположены торговые центры «Смолл» и «Вантаж». Бирюлевский дендропарк, который является вторым по величине в Москве после Ботанического сада и создан специально для озеленения столицы. Его территория благоустроена, проложены прогулочные и велодорожки, имеется прокат, установлены скамейки и прочие малые архитектурные формы, на отдельных площадках можно устраивать пикники.Обширная территория государственного музея-заповедника «Царицыно», в состав которого входит крупная природная зона.
Транспортная доступность. Жилой комплекс «Царицыно» расположен ближе ко МКАД, чем к центральной части Москвы. Путь от комплекса до Третьего транспортного кольца (ТТК) по Варшавскому шоссе занимает 30 минут без учета пробок, до Садового кольца – 35 минут.
Квартира без отделки.Возможна продажа под ипотеку.При быстрой брони дополнительная скидка.
Ссылка на объявление: https://estate-mos.ru/sale/saleapartments/176852
8 748 000
Татьяна


Москва, Бирюлево Восточное район, улица 6-я Радиальная, д 7/1, к1
Покровское1.3 кмЦарицыно1.8 кмЦарицыно2 км
redeemДанный объект можно приобрести в ипотеку

Информация об объекте

Количество комнат1-к квартира Этаж16 Площадь40 Жилая площадь20 Площадь кухни10.1 Лоджия1 Раздельных санузлов1 Совмещенных санузлов1 ОкнаДвор + улица РемонтОтсутствует

Информация о доме

Год постройки2021 Тип домаМонолитно-кирпичный Этажей в доме20 Лифты грузовые1 Лифты пассажирские1 ПарковкаНаземная