1-к. квартира, 43.1 м²
Продажа квартир на любой вкус и бюджет
Измайлово - зеленый район на востоке столицы.В шаговой доступности от дома Измайловский лесопарк. В районе невысокая плотность населения как раз из-за того, что значительную его часть занимает природно-исторический парк «Измайлово». По этой же причине район привлек когда-то внимание царей.В начале парка установлены аттракционы для детей, выложены аллеи для прогулок, оборудованы теннисные корты, которые зимой превращают в каток. Чуть дальше вглубь -круглый пруд с лодочной станцией.
Основная часть массива - это рощи, пруды и реки. Там оборудованы дорожки, чтобы гулять или ездить на велосипеде. Вокруг - тишина и покой, как будто ты находишься очень далеко от мегаполиса.
Измайловский Кремль и культурно‑развлекательный комплекс.стилизованное под русское зодчество XVII века. Это не только архитектурный объект, но и центр ремесел, музеев и ярмарок. Здесь можно посетить музеи русской игрушки, хлеба, водки, а также мастерские, где показывают традиционные народные промыслы. Кремль включают выставочные галереи современного искусства и скульптуры, а на ярмарке под открытым небом продаются изделия ремесленников и художников. В пределах комплекса находится деревянный храм святителя Николая с колокольней и обзорной площадкой.
Серебряно-Виноградный пруд, один из старейших в Москве.
Метро. В Измайлово приводят три станции метро: «Партизанская», «Измайловская» и «Первомайская». Ближе всего к центру города — «Партизанская». От нее можно доехать до «Площади Революции» за 13 минут.
Новый дом. Квартира светлая, просторная, с уже готовой улучшенной отделкой.
Планировка удобная, благодаря современным принципам зонирования, широким коридорам и прихожей, большая кухня и санузел.
Увеличены оконные проемы, остеклены балконы и лоджии, предусмотрены корзины для кондиционеров.
Подъезды оборудованы домофонами и пандусами. Предусматриваются помещения для консьержа и колясочные. Установлены современные лифты с видеонаблюдением. Проект обеспечивает доступную среду для перемещения родителей с колясками и маломобильных групп населения. Во дворе размещаются оборудованные детские и спортивная площадки, а также площадки для отдыха.
На нижнем этаже дома размещается коммерческая инфраструктура, на подземном этаже находится паркинг на 44 машино-мест.
28.11 м
Ссылка на объявление: https://estate-mos.ru/sale/saleapartments/177128
13 167 000
Татьяна


Москва, Измайлово район, улица Никитинская, д 5
Измайловская1 кмПервомайская1.6 кмПартизанская1.8 км
redeemДанный объект можно приобрести в ипотеку

Информация об объекте

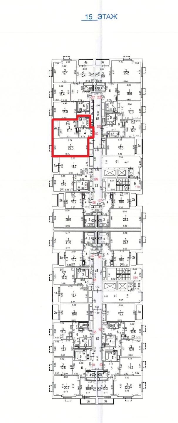
Количество комнат1-к квартира Этаж15 Площадь43.1 Жилая площадь22.5 Площадь кухни11.7 Лоджия1 Раздельных санузлов1 ОкнаДвор + улица РемонтЕвро

Информация о доме

Год постройки2025 Тип домаМонолитно-кирпичный Этажей в доме16 Лифты грузовые1 Лифты пассажирские1 ПарковкаПодземная