1-к. квартира, 44.4 м²
Продажа квартир на любой вкус и бюджет
В шаговой доступности от дома расположены торговые центры «Смолл» и «Вантаж». Бирюлевский дендропарк, который является вторым по величине в Москве после Ботанического сада и создан специально для озеленения столицы. Его территория благоустроена, проложены прогулочные и велодорожки, имеется прокат, установлены скамейки и прочие малые архитектурные формы, на отдельных площадках можно устраивать пикники.Обширная территория государственного музея-заповедника «Царицыно», в состав которого входит крупная природная зона.
Транспортная доступность. Жилой комплекс «Царицыно» расположен ближе ко МКАД, чем к центральной части Москвы. Путь от комплекса до Третьего транспортного кольца (ТТК) по Варшавскому шоссе занимает 30 минут без учета пробок, до Садового кольца – 35 минут.
Квартира светлая и просторная, с уже готовой улучшенной отделкой.
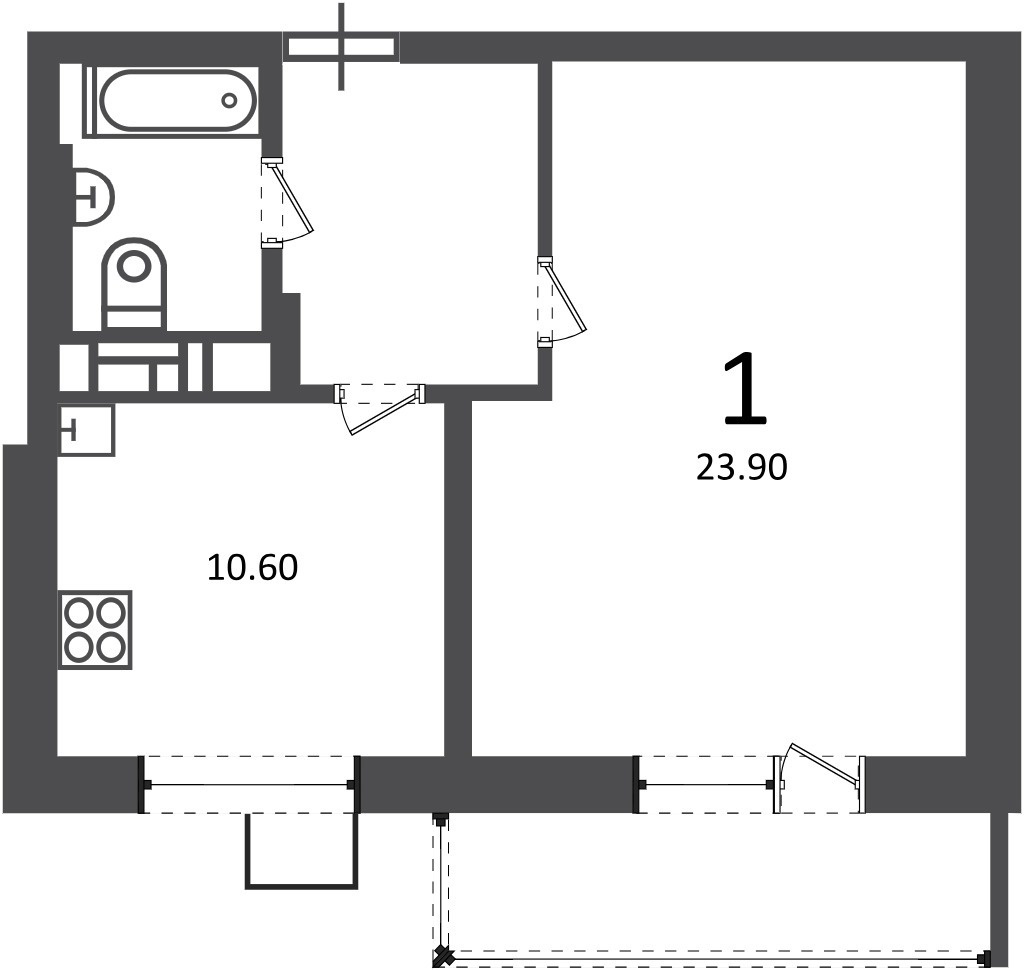
Планировка удобная - все благодаря современным принципам зонирования, широким коридорам и
прихожей, большой кухней и санузлом.
Обои, ламинат, плитка светлых оттенков
Кухня: фартук из керамической плитки, электроплита, тумба с мойкой
Санузел: установлена необходимая сантехника и оборудование
Остеклённый балкон
Входная и межкомнатные двери
Окна с двухкамерным стеклопакетом
Люстры, светильники, розетки и выключатели.
В квартире никто не прописан, никто не проживает. Возможна продажа под ипотеку.
22.12 м
Ссылка на объявление: https://estate-mos.ru/sale/saleapartments/177883
11 512 000
Татьяна


Москва, Бирюлево Восточное район, улица Касимовская, д 39, к2
Покровское2.2 кмКрасный строитель2.9 кмЦарицыно3 км
redeemДанный объект можно приобрести в ипотеку

Информация об объекте

Количество комнат1-к квартира Этаж5 Площадь44.4 Жилая площадь23.9 Площадь кухни10.6 Лоджия1 Раздельных санузлов1 ОкнаДвор + улица РемонтЕвро

Информация о доме

Год постройки2023 Тип домаМонолитно-кирпичный Этажей в доме16 Лифты грузовые1 Лифты пассажирские1 ПарковкаМногоуровневая