1-к. квартира, 32.5 м²
Продажа квартир на любой вкус и бюджет
В квартире никто не прописан, никто не проживает. Возможна продажа под ипотеку.
16.02 м
Ссылка на объявление: https://estate-mos.ru/sale/saleapartments/179964
8 398 000
Татьяна


Москва, улица Чертановская, д 43 к2
Пражская0.7 кмУлица Академика Янгеля1.3 кмЮжная1.9 км
redeemДанный объект можно приобрести в ипотеку

Информация об объекте

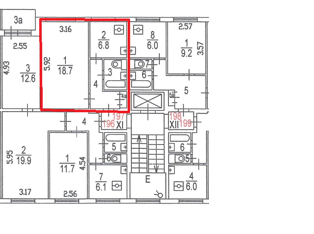
Количество комнат1-к квартира Этаж5 Площадь32.5 Жилая площадь18.7 Площадь кухни6.8 Балкон1 Раздельных санузлов1 ОкнаДвор + улица РемонтКосметический

Информация о доме

Год постройки1970 Тип домаПанельный Этажей в доме9 Лифты грузовые1 Лифты пассажирские1 Высота потолков270 ПарковкаНаземная