Продажа коммерческой недвижимости, 1 м²
Помещения для бизнеса в удобных локациях
Район - Тушино Северное
Транспортная доступность: Вавиловская
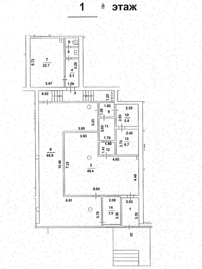
Продается нежилое помещение свободного назначения, на первом этаже - подвал.
Можно использовать под любой вид деятельности.
26/11 н
Ссылка на объявление: https://estate-mos.ru/sale/salecommercial/7791
60 000 000
Татьяна


Москва, Северное Тушино район, улица Туристская, д 19, к1
Сходненская1.3 кмПланерная1.3 кмТрикотажная2.5 км

Информация по объекту

Площадь1 Этаж12 Этажей в доме195.6 Юридический адресПредоставляется Кол-во мокрых точек4 СостояниеТиповой ремонт МебельНет ДоступСвободный ПарковкаНаземная

Информация по зданию

Год постройки1969 Тип строенияОбъект свободного назначения КатегорияДействующее ВентиляцияЕстественная КондиционированиеЦентральное ОтоплениеЦентральное

Инфраструктура