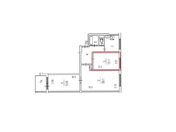
Продажа комнаты, 10.1 м²
Уютные комнаты для жизни
Прекрасная возможность проживать в благополучном районе и получить прописку в Москве для получения повышенной пенсии и других льгот. Жилье находится вблизи ВУЗов, известных достопримечательностей,такие объекты будут всегда пользоваться хорошим спросом для аренды, вы сможете, в случае необходимости получать дополнительный доход.
НЕ ДОЛЯ. В комнате ОТДЕЛЬНЫЙ кадастровый номер.
Комната с косметическим ремонтом. Благоустроенный двор с детскими и спортивными площадками. Во дворе высажены деревья, цветы и кустарники.
Индивидуализированный объект недвижимости - конкретной комнатой распоряжается конкретный человек.
Отдельное свидетельство
30.10 м
Отдельный лицевой счет
Закрепление за лицом жилплощади
Собственник комнаты может зарегистрировать на своей площади любое лицо, продать ее, сдать в аренду, использовать в качестве кредитного залога.
Возможна продажа под ипотеку, под залог имеющегося, либо стандартную.
Ссылка на объявление: https://estate-mos.ru/sale/salerooms/3997
3 111 000
Татьяна


Москва, Черемушки район, улица Перекопская, д 34, к1
Зюзино0.8 кмНовые Черемушки1.2 кмВоронцовская1.7 км
Данный объект можно приобрести в ипотеку

Информация об объекте

Тип продажиСвободная продажа Тип комнатыИзолированная Всего комнат в квартире3 Комнат в продажу1 Этаж3 Площадь общая59.7 Площадь комнаты10.1 Площадь кухни6.1 Лоджий1 Раздельных санузлов1 РемонтКосметический

Информация о доме

Год постройки1976 Тип домаПанельный Этажей в доме9 Лифты пассажирские1 ПарковкаНаземная