Продажа комнаты, 9 м²
Уютные комнаты для жизни
Прекрасная возможность проживать в благополучном районе и получить прописку в Москве для получения повышенной пенсии и других льгот. Жилье находится вблизи ВУЗов, известных достопримечательностей, такие объекты будут всегда пользоваться хорошим спросом для аренды, вы сможете, в случае необходимости получать дополнительный доход.
Район Зябликово
Район Зябликово расположен на юге Москвы, граничит с Орехово-Борисовым Южным, Братеевом и Орехово-Борисовым Северным. Этот район славится своей уютной атмосферой и спокойствием, что делает его привлекательным для проживания семей с детьми.

Природа и экология
Район Зябликово имеет зеленые зоны, которые обеспечивают свежий воздух и приятные прогулки. В районе находятся несколько парков и скверов, среди которых Парк культуры и отдыха Кузьминки, которые предлагают разнообразные виды активного отдыха и спорта. Кроме того, на территории района есть водоемы, такие как Борисовский пруд и Каширский пруд, которые придают району дополнительную привлекательность.

Инфраструктура
В районе Зябликово развита инфраструктура, которая включает в себя множество магазинов, кафе, ресторанов, аптек и других объектов торговли и услуг. Также здесь есть образовательные учреждения, включая школы и детские сады, а также спортивные площадки и фитнес-центры.

Транспорт и дороги
Район Зябликово удобно связан с другими частями города благодаря развитой транспортной системе. Ближайшие станции метро - это Зябликово и Красногвардейская. Наземный транспорт представлен автобусами и маршрутными такси, которые позволяют быстро добраться до нужного места. Дороги в районе достаточно качественные и позволяют легко передвигаться как на личном автомобиле, так и на общественном транспорте.

Социальная среда
Район Зябликово является спальным районом, где преобладает спокойная и дружелюбная атмосфера. Здесь живут люди разных возрастных категорий, большинство из которых составляют семьи с детьми. Район отличается низким уровнем преступности и высокой степенью безопасности.

Досуг
Для любителей активного отдыха в районе Зябликово имеется большое количество возможностей. Здесь расположены спортивные клубы, тренажерные залы, бассейны и теннисные корты. Также можно посетить кинотеатры, библиотеки и культурно-развлекательные центры. Для детей предусмотрены игровые площадки и парки развлечений.


НЕ ДОЛЯ. В комнате ОТДЕЛЬНЫЙ кадастровый номер.
Комната с ремонтом.
Документы готовы к сделке. Возможна продажа под ипотеку.
Индивидуализированный объект недвижимости - конкретной комнатой распоряжается конкретный человек.
Отдельное свидетельство
Отдельный лицевой счет
Закрепление за лицом жилплощади
Собственник комнаты может зарегистрировать на своей площади любое лицо, продать ее, сдать в аренду, использовать в качестве кредитного залога.
Аукцион.
Никто не живет и не прописан. Документы полностью готовы к сделке. Возможна продажа под ипотеку.
На сегодняшний день способ покупки. Открывающий для покупателей массу привилегий и бонусов. Цена объекта значительно ниже рыночной стоимости, что дает единственную в настоящее время уникальную возможность приобрести привлекательный объект, для личного использования, но еще и заработать, на перепродаже, тем самым без всяких рисков и усилий удвоив свой первоначальный капитал.
25.11 м
Ссылка на объявление: https://estate-mos.ru/sale/salerooms/4010
2 160 000
Татьяна


Москва, Зябликово район, улица Кустанайская, д 10, к1
Шипиловская0.7 кмКрасногвардейская0.8 кмЗябликово0.8 км
Данный объект можно приобрести в ипотеку

Информация об объекте

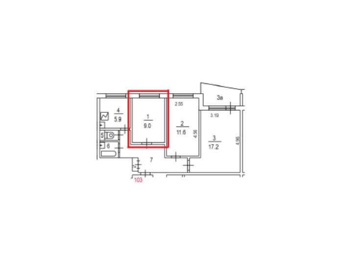
Тип продажиСвободная продажа Тип комнатыИзолированная Всего комнат в квартире3 Комнат в продажу1 Этаж8 Площадь общая59.7 Площадь комнаты9 Площадь кухни5.9 Лоджий1 Раздельных санузлов1 РемонтКосметический

Информация о доме

Год постройки1976 Тип домаПанельный Этажей в доме9 Лифты пассажирские1 ПарковкаНаземная