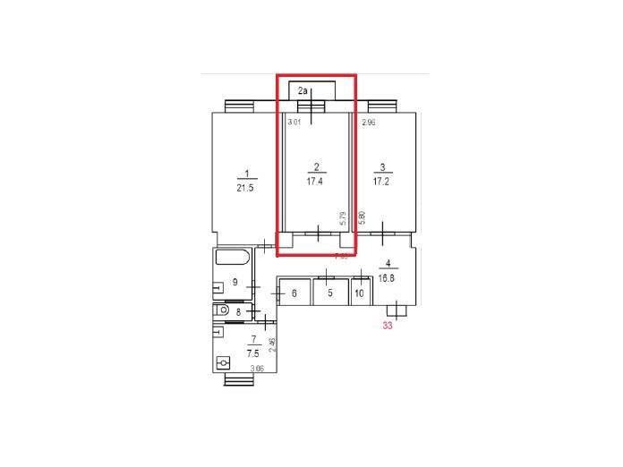
Продажа комнаты, 17.4 м²
Уютные комнаты для жизни
Один из самых престижных и экологически благоприятных для проживания районов Москвы. В шаговой доступности от дома МГУ им. Ломоносова, РУДН, МГИМО, ГАУГН, МФЮА. Академический парк с множеством детских и спортивных площадок. Парк «Новые Черемушки» с прогулочными и велосипедными е дорожками. Сквер «Диета» с зонами для занятий спортом на открытом воздухе. Кинотеатр «Улан-Батор». Дом культуры «Новатор», три библиотеки, три музея: знаменитый Дарвиновский зоологический музей.
На придомовой территории размещены детские и игровые площадки, площадки для отдыха и спорта.Озелененная территория, высажены деревья ,кустарники, разбиты газоны и цветники. Аукцион.
Прекрасная возможность проживать в благополучном районе и получить прописку в Москве для получения повышенной пенсии и других льгот. Жилье находится вблизи ВУЗов, известных достопримечательностей,такие объекты будут всегда пользоваться хорошим спросом для аренды, вы сможете получать дополнительный доход. Есть перспектива выкупа других комнат по льготной цене.
В комнате отдельный кадастровый номер.Высота потолков
280 см
Комната с косметическим ремонтом. Документы в порядке. Никто не прописан и не проживает. Нет обременений и залогов. Возможна продажа под ипотеку. Есть возможность выкупить вторую комнату
Ссылка на объявление: https://estate-mos.ru/sale/salerooms/4063
5 446 000
Татьяна


Москва, Академический район, улица Кржижановского, д 5, к3
Профсоюзная0.7 кмАкадемическая0.7 кмНовые Черемушки1.6 км
Данный объект можно приобрести в ипотеку

Информация об объекте

Тип продажиСвободная продажа Всего комнат в квартире3 Комнат в продажу1 Этаж4 Площадь общая109.1 Площадь комнаты17.4 Площадь кухни7.5

Информация о доме

Год постройки1957 Тип домаКирпичный Этажей в доме5 Лифты пассажирские1 ПарковкаНаземная